 
            | 北京·华萃西山 | |||
| 项目位置 | 北京市门头沟区永定镇地铁S1线石厂站南约700米 | ||
| 建筑高度 | 13-24m | 总建筑面积 | 9.93万㎡ | 
| 建筑形式 | 洋房、叠拼 | 绿化率 | 30% | 
| 销售电话 | 010-61818855 | 邮政编码 | |
| 规划设计单位 | 北京维拓时代建筑设计股份有限公司 | ||
| 销售接待中心地址 | 北京市门头沟区永定镇地铁S1线石厂站南约700米 | ||
| 二维码 |  | ||
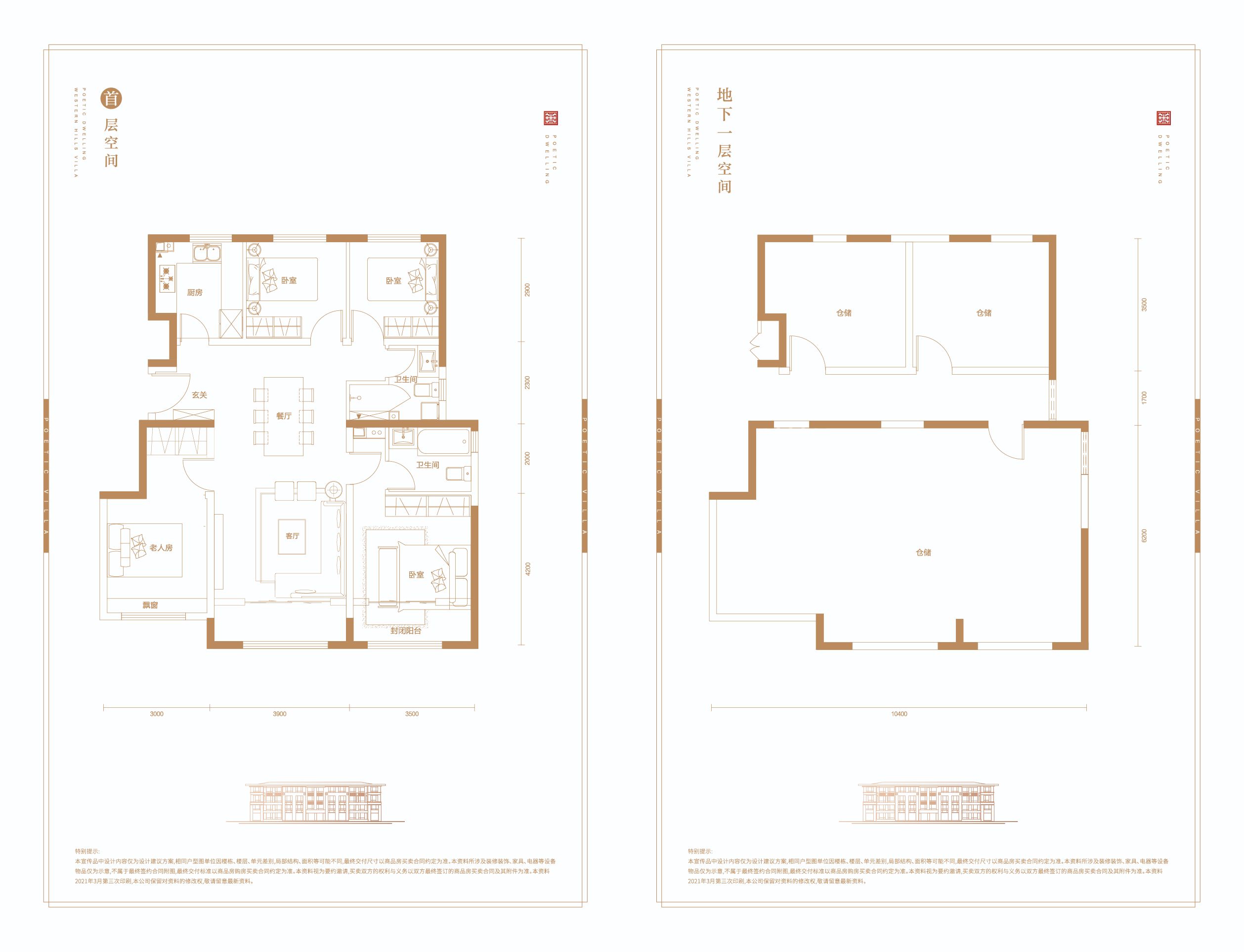
北京华萃西山项目位于北京市门头沟区地铁S1号线石厂站南约700米,毗邻西长安街沿线,隶属京西生态涵养区的核心位置,环境优美,纵享三横三纵双地铁的便捷立体交通网和醇熟商业教育医疗等配套资源。项目打造容积率仅1.05的高品质浅山别墅区,全部建设4-8层精工洋房及叠拼别墅产品,内嵌无触碰归家健康生活体系,搭配金地物业服务,为实现业主优质舒适生活保驾护航。